top of page
Erweiterung Bauernhaus, Brittnau
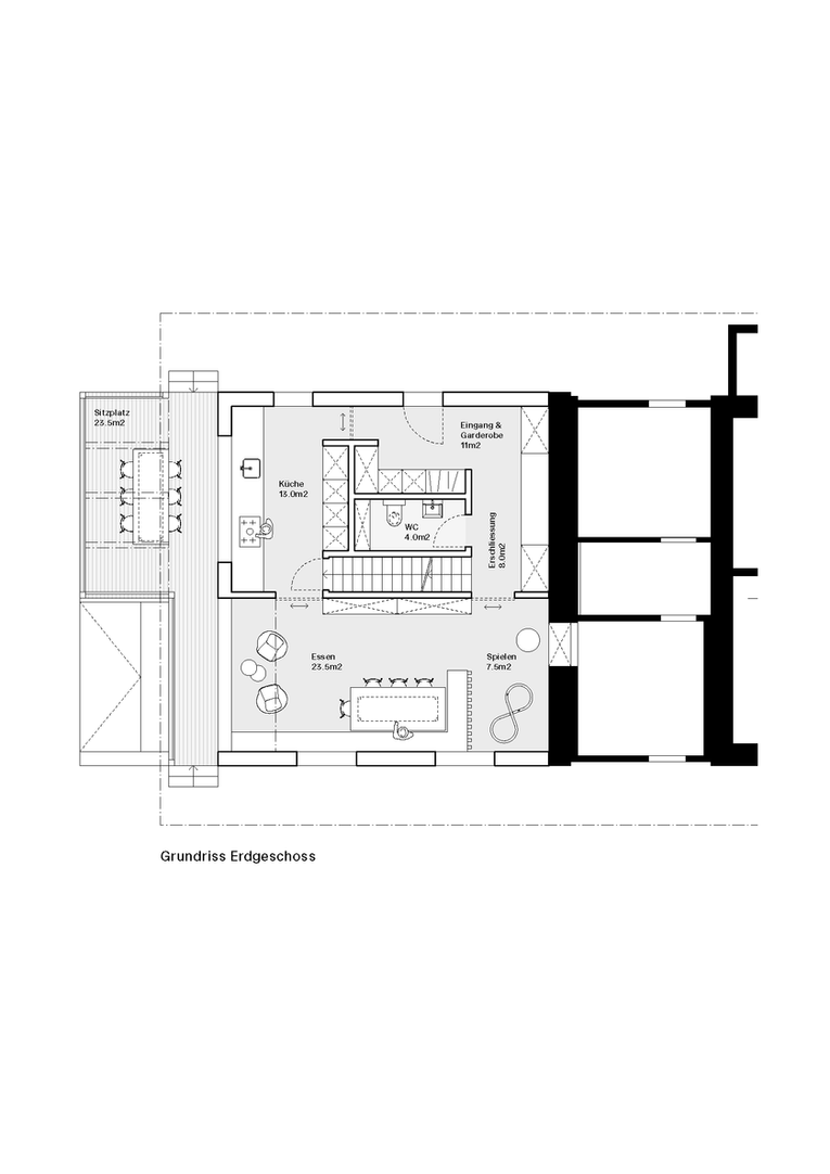
Das regionaltypische Bauernhaus in Brittnau stammt aus dem 19. Jahrhundert. Sein zeltartiges Dach (Walmdach) gliederte früher den Lebensbereich von Mensch und Tier unter einem Dach.
Das Bauernhaus soll zukünftig als Mehrgenerationenhaus dienen, wodurch eine Nutzungsänderung vorgesehen wird. Der Stall wird dabei zu einem Wohnhaus ausgebaut, in dem zukünftig die junge Familie wohnt.
Standort: Brittnau, Aargau
Bauherrschaft: Privat
Architektur: Atelier Romi
Auftrag: Studie
bottom of page











